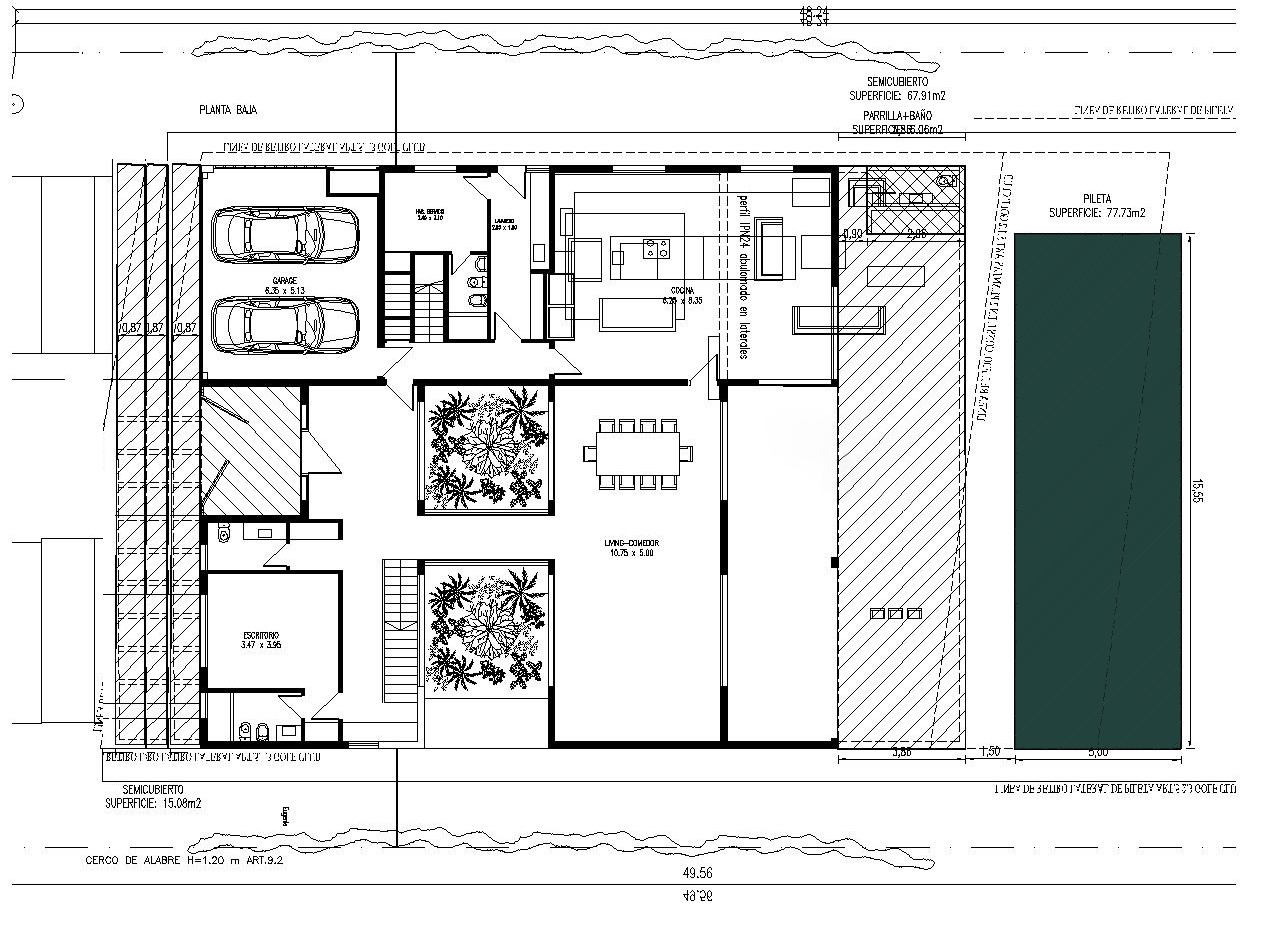
HACOAJ COUNTRY CLUB

Pre projects of private residences with different typologies that enjoys the benefits of a club life.

Rincon de Milberg, Buenos Aires, Argentina (2018-2021)